山東大學校園運動場改造設計方案曝光
時間: 2020-11-12 11:25
瀏覽次數:
我國高等教育的發展與現代歷史息息相關,許多高校的校園規劃和建筑風格仍保持著歷史特色。 傳統的規劃阻礙了現代化的發展。 如何在不破壞歷史觀的前提下進行現代化建設,是許多高校在校園改建中面臨的首要問題。
設計團隊希望通過山東大學校園運動場改造設計和研究,探索如何在傳統校園中建造大型體育建筑,該建筑不僅可以適當地融入現有的校園紋理并相互補充,而且可以滿足功能 現代大學體育設施的需求和空間創造。

體育場鳥瞰效果圖

看臺樓田徑場方向人視效果圖
項目基地位于列入文物保護規劃的山東大學趵突泉校區內,需要對原有陳舊落后的體育場進行改造,優化現有環境,重新打造校園看臺建筑。

基地位置及校園風貌
重點1:與校園歷史建筑氛圍緊密融合

肌理融合
趵突泉校區現有的大多數建筑物都是排成排的小型建筑物,與大型體育建筑物形成鮮明對比。 該計劃提取了周圍建筑物中的斜坡頂部元素,并將其解釋為更現代,更自由的折疊板形式,并結合了自然生長的草坡形式,以隱藏建筑物的體積并削弱新建筑的壓力。 建立在周圍環境上,形成獨特的景觀。

看臺樓入口人視效果圖
重點2:現代校園體育設施的空間與功能營造
體育館設施陳舊,交通不便,停車場不足,不利于校園資源的合理利用和長遠發展。 首先,重新規劃場地布局,以創建多功能體育場綜合看臺,并與地下車庫相結合以擴展現有功能。
在總體布局中,看臺建筑作為主要建筑,與田徑體育場和當前體育場形成了軸心關系,將附屬的俱樂部活動中心和其他室外體育場緊密相連,并提高了場地效率。 從地面到頂部扭曲并會聚的建筑形式既整齊又對稱。 同時,它采用樹狀木狀結構。 等間隔的L形扁平斜柱形成強烈的節奏感,并增強了建筑物形狀的向上感。

看臺樓主導地位

節律性結構形式
重點3:單棟現代空間建設
在折板式頂篷與看臺建筑主體之間形成一個空腔,形成一個半室內和半室外的公共活動空間。 透明的建筑棚架引入了陽光和新鮮空氣,該建筑的二層平臺通過精致的室外樓梯與現場的健康步道融為一體,為學生提供了一個新的休閑區。
罩棚內特色空間

室內效果圖
附屬的俱樂部活動中心以覆蓋地面的建筑物形式與主體建筑物的底部協調。 起伏的草坡與場地完美融合。 中間沉沒形成曲折的道路。 結合自由步驟和泳池的設計是獨特而有趣的活動空間。
該計劃進行合理的功能劃分,將聽眾,學生和教職員劃分為三個主要組,并設置不同的入口和出口,以避免流線相交。
功能分區

剖透視1

剖透視2
綠色建筑
看臺的建筑頂篷可確保內部遮光和通風,并在鋼結構屋頂上安裝光伏玻璃,并在玻璃結構上覆蓋碲化鎘薄膜,該玻璃不僅可以透光,而且可以吸收光能并將其轉化為熱能,供運動員使用 淋浴熱水等相關場所。

日照遮陽

自然通風

構造分析
技術圖紙

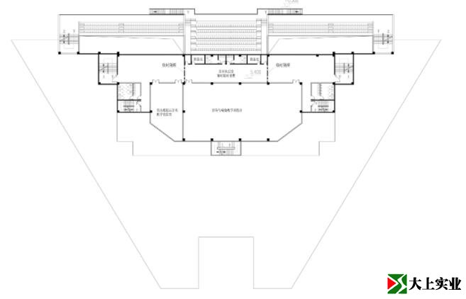
總平面圖

一層平面圖

二層平面圖

三層平面圖
四層平面圖

地下一層平面圖
地下二層平面圖
立面圖
項目信息
項目名稱:山東大學趵突泉校園運動場改造設計
設計團隊:天津大學建筑設計研究院設計三院
建筑師:張波,鄧惠予,王子健
項目地點:山東省濟南市文化西路44號
建筑面積:52800㎡
設計時間:2020.02-2020.03
設計階段:投標方案
全國范圍承接:各類球場、運動場、透水路面、地坪漆等工程項目!
免費上門勘察、免費設計、免費報價、免費樣品!
業務手機(微信):13590345552
公司客服:0755-84674858
公司地址:深圳市龍崗區平湖街道平湖社區鳳凰大道33號坤宜福苑11號樓310
工廠地址:廣東省東莞市橋頭鎮東山路綜藝高新產業園廠房B棟一樓